US Building of the Week

The Press

Ehrlich Yanai Rhee Chaney Architects | 10. July 2023
Photo: Matthew Millman
Project: The Press, 2021
Location: Costa Mesa, California
Client: SteelWave and Seth Hiromura
Architect: Ehrlich Yanai Rhee Chaney Architects
  • Design Principal: Patricia Rhee, FAIA, DBIA, LEED AP
  • Project Architects: Damian Possidente, AIA, LEED AP; George Racomura, AIA
  • Project Manager: George Racomura, AIA
  • Project Team: Melissa Cataldo, Yuan Feng, Ashley Chang, Joe Varholick
Structural Engineer: Saiful Bouquet Structural Engineers
MEP Engineer: Alvine Engineering
Fire/Life Safety: SGH
Landscape Architect: LRM Ltd. and Lane Goodkind & Associates
Lighting Designer: BOLD
Contractor: Del Amo Construction
Site Area: 23.4 acres
Building Area: 450,000 sf 
Photo: Matthew Millman
What were the circumstances of receiving the commission for this project?

The developer held a competition for the concept design of the project, inviting three architects. From the beginning, we brainstormed with our landscape architect and structural engineer. Because we wanted to retain particular elements of the original building, like the cantilevered loading dock canopies and the 50-foot-high clear spaces, we discussed with our structural engineer what the constraints were to keep these elements without triggering a major seismic retrofit. The engineer gave us the dimensional constraints and locations of where we could locate openings, in order to bring in daylight, air and views. Our pragmatic strategy of keeping as much of the existing industrial character, while stripping and exposing structure in particular locations to tell the story of the building was key to winning the project.

Photo: Matthew Millman
Please provide an overview of the project.

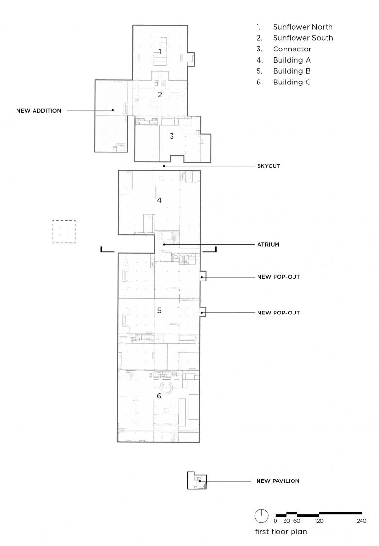
A former Los Angeles Times printing plant is reimagined as an adaptively reused creative campus. The Orange County facility, vacant since 2010 along with an even-longer-abandoned rail line and gas station, is reincarnated as a multidisciplinary workspace with a dining Canteen and a public Rail Trail on its 23.4-acre site.

Among adaptive reuses of its scale, the project is notable for utilizing nearly every aspect of the building’s previous use. The campus design preserves and upgrades the existing structure with minimal intervention, extending the lifespan of a local landmark beyond its newly repurposed use today.

Photo: Matthew Millman
What are the main ideas and inspirations influencing the design of the building?

A thoughtful, intentional balance between preservation and growth distinguishes this complex adaptive reuse. The design celebrates both material and organic markers of time. Paint chips, rail spurs and conveyor belts are left as is and an existing tree is placed to grow through the structure itself — hinting at history, site and context.

Portions of the 1,150-foot-long continuous complex are selectively subtracted to achieve habitability while retaining its industrial past. Spaces for machines become spaces for people.

Photo: Matthew Millman
How does the design respond to the unique qualities of the site?

Precise cuts through precast concrete walls and roofing bring in fresh air, daylight and views. This subtraction exposes the beauty of the existing, reviving what has since been neglected and inviting the landscape to enter in through and around the campus.

The revitalized buildings and site create a campus with unique amenities, including a landscaped park area in an otherwise nature-starved corner of Costa Mesa.

The campus reincorporates an existing rail line into a bike and pedestrian trail accessible to the public — an early component of one of Orange County’s ambitious master plans.

Photo: Matthew Millman
How did the project change between the initial design stage and the completion of the building?

The initial design aimed to preserve all of the original cantilevered canopies covering the loading docks while opening up the structure with expansive glass walls — two aims that were discovered to be structurally incompatible. Ultimately, the strategy of “selective subtraction” was able to retain the canopies without sacrificing daylight and fresh air by puncturing carefully-selected individual concrete walls with tall, narrow windows.

Photo: Matthew Millman
Was the project influenced by any trends in energy-conservation, construction, or design?

As an architect, the most sustainable thing we can do is to recycle existing buildings, rather than building ground up, importing tons of new material to a site. Our team took this to heart and designed a facility that considered preservation of existing structure first and only demolishing in strategic locations (for access to daylight, views, fresh air, circulation). We did add new mezzanines and a new tilt-up building to supplement the existing facilities, but with careful consideration of location and feasibility. The surprises uncovered during demolition were plentiful and provocative — finding the original “Los Angeles Times” signage hidden under layers of paint which we retained at the main entry. Rusty conveyor belts that used to transport the newspaper were kept as part of the planting areas. These moments celebrate the industrial history and help tell the story of the building and site.

Photo: Matthew Millman
What products or materials have contributed to the success of the completed building?

Material selection stressed selective subtraction and minimal addition. Glass fills newly-opened corners to accentuate existing elements. Every new material was chosen based on how it would age, embracing the march of time and its residual quirks.

Avoidance of newness for its own sake informed use of thermally-modified pine wood which is both relatively low-impact due to fast growth, will age to echo the original building’s patina.

Three varieties of Radiata Pine decking were used throughout, including the open-air lobby, entry court stairs, park and outdoor decks and seating.

Email interview conducted by John Hill.

Photo: Matthew Millman

Important Manufacturers / Products:

  • Wood – Kebony & Boulevard
  • Curtain Wall – Liberty Glazing and Arcadia
  • Reckli Concrete Formliner
  • Lumenpulse, Ecosense, WE_EF lighting
  • Skylights – Wasco Ecosky
Site Plan (Drawing: Ehrlich Yanai Rhee Chaney Architects)
First Floor Plan (Drawing: Ehrlich Yanai Rhee Chaney Architects)
“Subtraction” Diagram (Drawing: Ehrlich Yanai Rhee Chaney Architects)

Related articles 

Other articles in this category