Taiyuan is the largest city in the northern Chinese province of Shanxi, where about a quarter of Chinese coal is mined. There are over three million inhabitants in Taiyuan city centre and the city has long been known for its high levels of air pollution. In recent years, air quality has improved and the city is trying to maintain its reputation as a base for cultural tourism, as there are several significant temples in the region.
Architectural/ Interior/ Landscape Design: Vector Architects
Design Principal: Dong Gong
Project Architect: Sun Dongping
Construction Management: Zhao Liangliang
Site Architect: Guo Tianshu, Chen Zhenqiang
Design Team: Ma Xiaokai, Chen Zhenqiang, Zhang Kai, Jiang Yucheng, Teng Xiaotong, Zhao Dan
Structural & MEP Engineering: Beijing Hongshi Design Co.,Ltd.
LDI Project Architect: Zhang Cuizhen
LDI Architect: Li Mo
Structural Design: Xue Wei, Zhong Zhihong, Tian Xi
Mechanical & Electrical Design: Shen Juan, Hao Shufang, Zhang Jianxia, Shi Kefeng, Li Yingping
Lighting Consultant: X Studio, School of Architecture, Tsinghua University
Client: Shanxi Qiandu Real Estate Development Co., Ltd.
Structure: Reinforced Concrete Shear Wall
Material: Wood-form Concrete, Brick, Laminated Bamboo
Building Area: 3 932 m2
Design Period: 2016.05–2017.03
Construction Period: 2017.03–2019.09
Photography: Chen Hao
A new private art museum is located in the northeast periphery of the city, in the former village of Changjiang, of which only the name remained after its demolition in 2016. The spatial context with the memories of people's everyday lives disappeared. With the new museum, Vector Architects aimed to provide a contemporary response that atmospherically recalls the historical traces of village life.
The museum is located on the southern edge of a newly built residential complex and is intended to act as a link between the new residential quarter and the adjacent city. The architects attempted to consider questions of the wider urban community as well as the specific needs of the residential quarter.
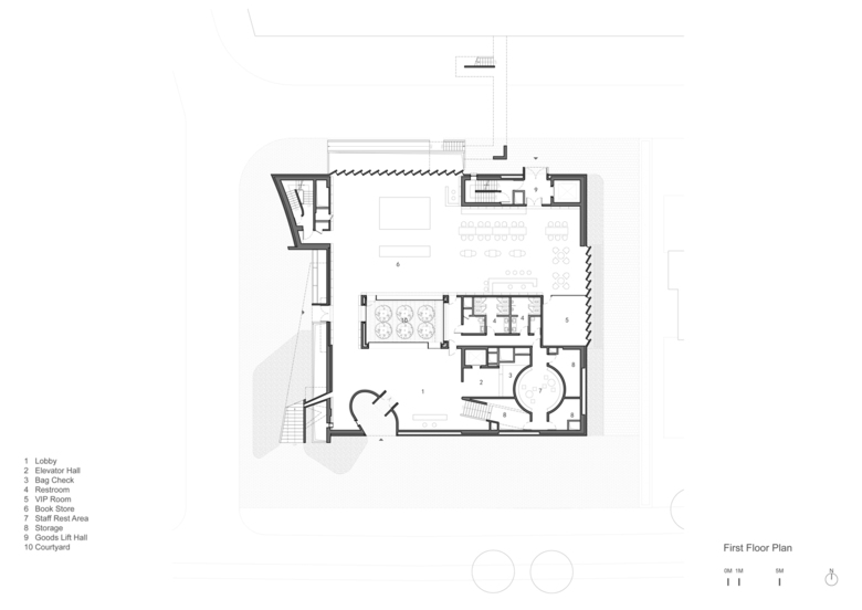
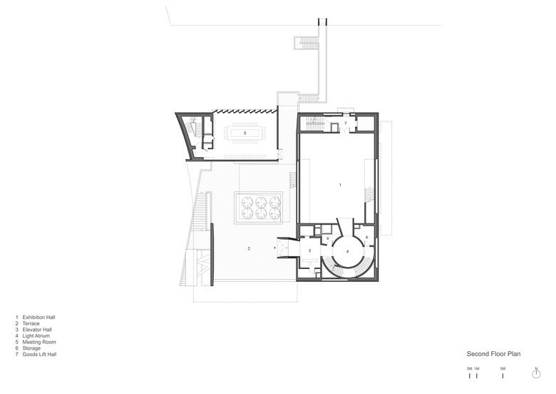
The cubic structure with a reddish brick skin has sculptural niches at the southwest corner, into which an external staircase is inserted. The first floor is a public terrace overlooking a tree-lined courtyard in the centre. The open space above this inner courtyard is a play of form and material that is staged in different ways as daylight changes. A pedestrian bridge leads over the adjacent northern street into the neighbouring residential area. Residents can use the terrace as a connecting element to the residential area without entering the museum.
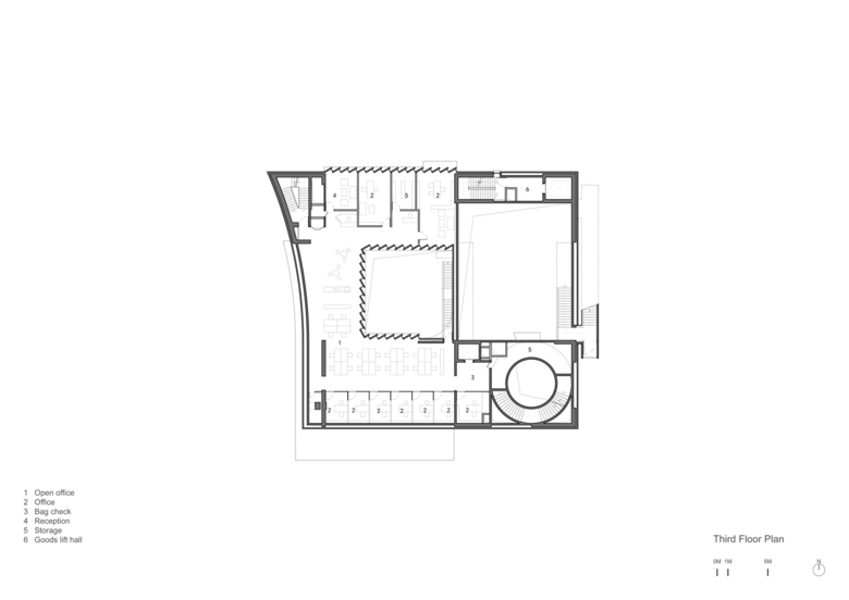
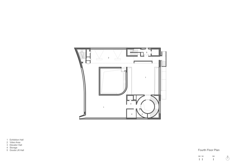
The galleries of the museum are arranged around a cylindrical light shaft cast in raw concrete with a diameter of 5.7 metres and a height of 16.4 metres, which serves as an organising ‘anchor’ for all spaces. The internal circulation is via a staircase that wraps around the cylinder. Openings in the cylinder allow views into the dramatic interior, illuminated from above, at different heights.
In the gallery spaces, natural light is filtered and attenuated by skylights and reflected within deep ceiling coffers of 1.9 x 1.9m to control its intensity. The museum is connects outwards to the city via an external staircase linking the second and fourth floors. A protruding corner window on the fourth floor and a southwest-facing vertical window on the same floor give the museum visitor views into the contemporary cityscape of Taiyuan.
The museum architects understand the Changjiang Art Museum as a solid brickwork block in the sea of the surrounding urban collage that asserts itself against the visual noise of the periphery. The retreat-like spaces of the museum are of enormous importance in the otherwise stressful and vastly changing urban landscape, because they facilitate reflection on this chaos while at the same time celebrating a sensual spatial experience of tactile materiality that can appear as solid or opaque depending on the daylight.
Gong Dong, the founder and design principle of Vector Architects, spoke about just these qualities at the French Academy of Architecture in Paris, where he is a foreign member. In his speech, he said: “I fully agree that architecture is not an isolated art. It has to respond to the social and political environment of our time, but after all, good architecture is always able to transcend the boundaries of reality, regain its authenticity and reassure our body and soul.”
Related articles
-
-
A Loop for the Arts: The Xiao Feng Art Museum in Hangzhou
Eduard Kögel, ZAO / Zhang Ke Architecture Office | 15.12.2025 -
-
-























