U.S. Building of the Week
Williams Park Fieldhouse
Dearborn Homes is a public housing development on Chicago's South Side, just north of the Illinois Institute of Technology. The homes sit astride Williams Park, which has a new fieldhouse with an iridescent skin courtesy of STL Architects. The architects answered a few questions about the recently completed building.
Location: Chicago, Illinois, USA
Client: Chicago Park District
Architect: STL Architects
- Design Principals: Luis Collado, Jose Luis de la Fuente
- Project Architect: Jose Luis Perez-Griffo
- Project Managers: Beatriz Gonzalez, Janelle Moody
- Technical Director: Tracy Salvia
- Project Team: Ignacio Espigares, Shoko Nakamura, Brian Koehler, Sara Contreras, Pablo Alvarez
Civil Engineer: McBride Engineering
Landscape Architect: Daniel Weinbach and Partners
Lighting & Interior Designer: STL Architects
Cost Estimation: Faithful & Gould
Contractor: Burling Builders Inc
Construction Manager: Public Building Commission of Chicago
Site Area: 41,235 sf
Building Area: 11,220 sf
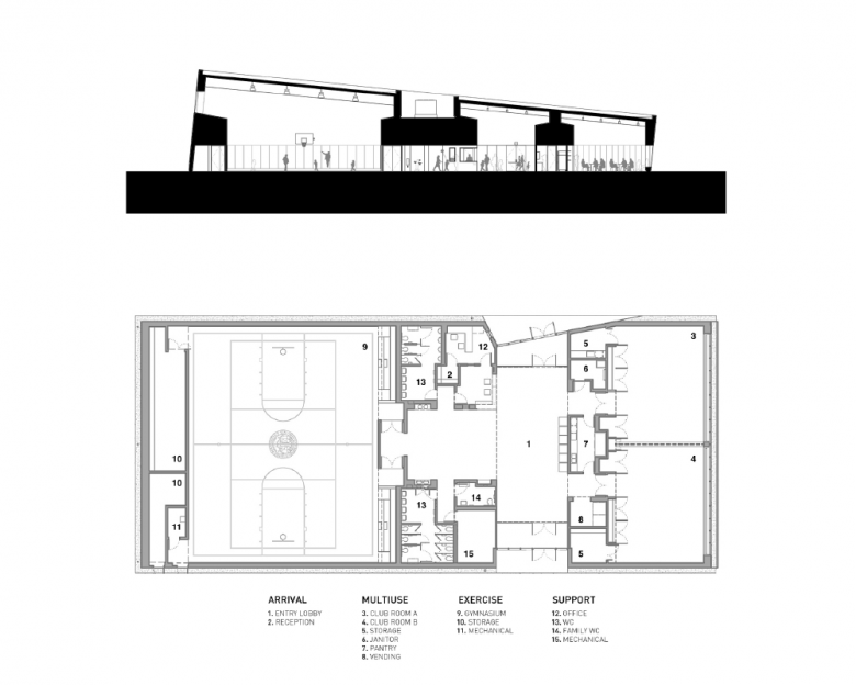
Located in Bronzeville, this new Chicago Park District fieldhouse is a single-story building which includes a 3,800-square-foot basketball gymnasium with spectator seating, two multi-purpose community rooms with a shared pantry, offices, reception, and storage spaces.
The new Williams Park Fieldhouse is the first building in Chicago to be fully clad in vibrant, iridescent stainless steel following a dragon scale pattern. The metal shingles create a chameleon-like effect, imparting multiple chromatic and reflective expressions which fluctuate throughout the day and across the seasons. This unique exterior expression enhances the visibility of the building solidifying the fieldhouse as a referential anchor within the community.
The building’s interior combines durable materials such as polished concrete floors and composite acrylic polymers with exposed large span glulam beams to create an environment that is both resilient and welcoming.
The design finds inspiration in the prevailing use of raw materials in everyday objects that are present throughout the Chicago Park District. The bronze sculptures, cast iron drinking fountains, concrete lamps, and steel bridges that are found throughout the park system reflect Chicago’s appreciation for an authentic application of materiality to function. The design team used steel, the same material that made possible the rise of the Chicago skyscraper, as the foundation of both structure and exterior wall to create a project that plays homage to Chicago with a bold geometry that anchors the building as a safe public place.
Williams Park Fieldhouse is located in the heart of Dearborn Homes, a public housing complex and a community historically challenged by rival gang violence. As a result, the architecture of the neighborhood has often been focused on providing protection and safety above all else. Our approach attempts to elevate the discourse surrounding the creation of safe physical environments by creating architecture that, in addition to providing safe spaces, also aims to inspire and transform the lives of its users.
Through the celebration of community and the creation of a sense of reverence and civic responsibility for the care of public buildings, our design for the new Williams Park Fieldhouse is a testament to our conviction that architecture has the power to promote healing and inspire awe. Honoring the importance of community as a positive force and stimulating appreciation for public infrastructure were a key ingredient in the development of the design.
The fieldhouse will impact the lives of young people daily, creating a safe and inspirational environment for the 600 children that live Dearborn Homes the Williams Park Field House provides year round sports and entertainment programming using resilient materials that withstand the harsh climate of Chicago.
Although the project was conceived as a metal-clad building, the specific application of iridescent steel shingles was the result of intensive material research. The design team evaluated bronze, aluminum, titanium, and eventually settled on steel as the final expression. Similarly, multiple exterior wall systems were evaluated ranging from insulated steel metal panels to perforated and solid clad steel shingles or various size and configurations. The final rhomboidal vertical pattern allowed us to separate the expression of the building geometry from a particular modulation, utilizing the concept of a continuous skin to emphasize a single volumetric expression.
Millenium Panels of Wisconsin manufactured the iridescent stainless steel shingles that clad the Field House. This material responds to different light conditions, appearing to change hue when viewed from different angles. This bold and elegant exterior expression enhances the visibility of the field house and establishes it as a community anchor for the Park District. The interior materials consist primarily of gypsum panels, polished concrete, teak countertops and long span laminated structural wood beams in the ceiling. The use of wood in the ceiling upholds the rich historical expression of wood that is found in many historic Park District field houses in Chicago.
Email interview conducted by John Hill.
- Facade Cladding: Millenium Forms – LIC Flatlock Panels
- Timber Structure: W.W. Timbers – glulam beams
- Entry Stone Cladding: Coldsprings – Raven Noir
- Roof Membrane: Sarnafil – G410 Energysmart
- Aluminum Framed Entrance (exterior vestibule): Oldcastle Building Envelope – FG-3000
- All Glass entrance (interior vestibule): Oldcastle Building Envelope
- Operable Panel Partition: Modernfold - Acousti-Seal 932
- Solied Surface Panels: Staron – BW010









