U.S. Building of the Week
Wonderland Houses
Los Angeles's MUTUO recently completed Wonderland, three side-by-side single-family houses on a steep lot in the Hollywood Hills. With an informal design sense reminiscent of R.M. Schindler's iconic "Greek hillside" Bubeshko Apartments, Wonderland incorporates a variety of outdoor spaces that give residents opportunities to interact. MUTUO answered a few questions about the project.
Location: Hollywood Hills, Los Angeles, California
Client: Laurec LLC & Cidras and Santa Tecla Solutions LLC
Architect: MUTUO
- Design Principals: Jose Herrasti & Fernanda Oppermann
- Project Team: Fernanda Ximenez, Alejandra Novelo, Isabel Driessen, Sandra Villanueva
MEP/FP Engineer: Building Solutions Group
Landscape Architect: Puentealameda (Lorena Garcia)
Contractor: Asterisk Inc. (Fadi Shabshab)
Construction Manager: Jonathan Meister, Kevin Burke
Site Area: 7,500 sf
Building Area: 6,000 sf
This was a development project undertaken by MUTUO with the owners as partners.
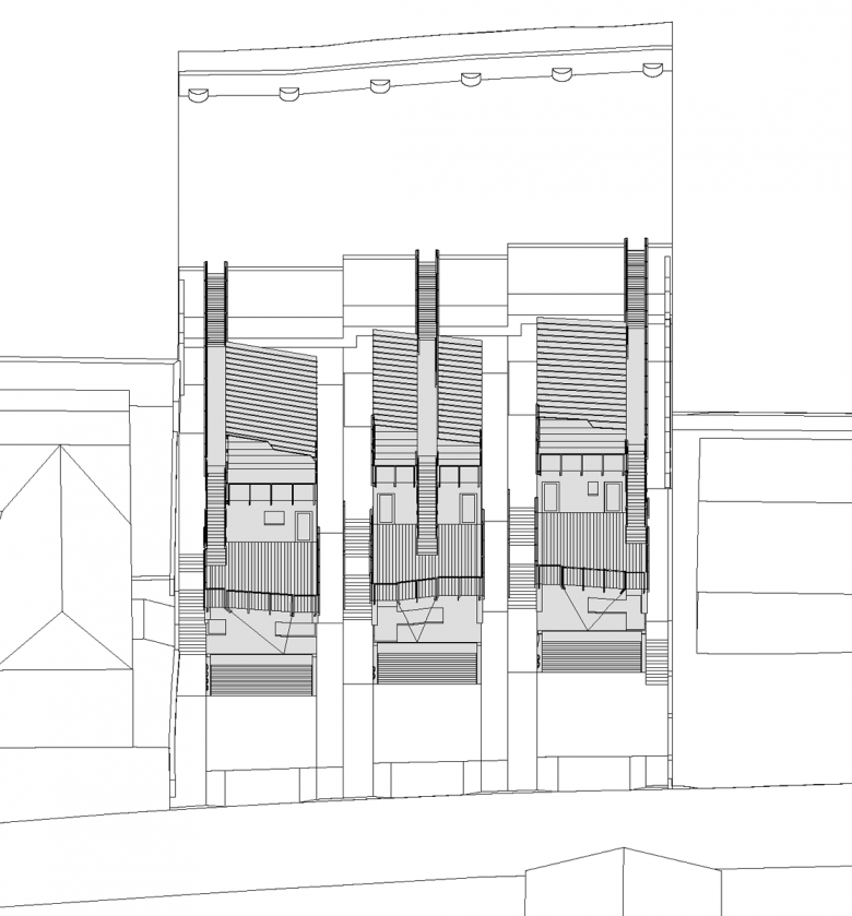
Three residences sit on three small and narrow up-hill lots in the Hollywood Hills. MUTUO’s design for this project aims to maximize indoor residential areas as well as outdoor living areas. It also seeks to craft intricate details through the interplay of different construction methods and materials.
This project proposes outdoor communal living through a variety of connected exterior areas. It explores preconceived ideas of boundaries between neighboring semi-private spaces. Opportunities for exterior living and community interaction include: shaded back patios, large front terraces, roof terraces, and walkways bridging over to the adjacent hill.
The project also explores the interplay of several construction methods and materials. Construction methods vary from rough shotcrete retaining walls to board-formed concrete walls, and wood-frame and steel-frame construction. Victorian wood shingles, unpainted stucco, and exposed concrete are some of the diverse materials juxtaposed throughout the project. Exterior walls of different construction methods and different finishes cap and interlock each other, carefully transitioning at corners.
Wonderland plays with spaces and materials proposing a new communal way of living, challenging preconceived notions "contemporary" and "traditional."
We wanted to provide as much outdoor gathering areas as possible, and we wanted to use materials with different patterns and scales of patterns.
The lots are narrow and sloped. The project takes advantage of the slope to provide different outdoor gathering areas. The layout of the spaces responds to the narrowness of the lots by providing spaces that don’t feel constrained.
The changes were minimal. The mechanical systems changed from radiant cooling and heating to a high efficiency zoned system. A couple of windows were reconfigured.
Besides using an insulated envelope, we used thermal mass, cross ventilation and daylighting as passive energy saving strategies. Concrete was chosen for its structural and aesthetic qualities as well as for its ability to absorb heat during the day and slowly release it during the night and vice-versa. In the buried portions of the houses, the concrete, in conjunction with earth, increase the thermal mass benefits. The short distance between the side walls of each of the houses allow for cross-ventilation with operable windows. With narrow spaces, daylighting is also possible through the punched windows and clerestory glazing. The stairs are covered by a large skylight which is, in-turn, under an overhang, allowing for daylighting without direct sunlight exposure.
All the products and materials were carefully evaluated and chosen, and a lot of the work was custom designed and made for the project.
Important manufacturers/products:
- Mitsubishi high efficiency, zoned HVAC
- Arcadia windows
- Nest smoke and carbon monoxide alarms
- August doorbell and look
- Americh bathtub
- Aquatica bathtub
- Duravit toilets
- Lacava lavatories
- Artisan kitchen sink
- Hansgrohe faucets and showers
- Bertazzoni range and dishwasher
- Liebherr refrigerator
- Electrolux clothes washer and dryer
- Shakertown wood shingles
- Navien efficiency water heater
Email interview conducted by John Hill.












