US Building of the Week
30th Street
People can be excused for mistaking this house in Manhattan Beach, California, as a building at Sea Ranch: the homeowners were inspired by the the famous residential community along the Pacific coast in Sonoma County. In turn, the architects at Blue Truck Studio remodeled the client's existing house with shed roofs and wood siding reminiscent of Sea Ranch. San Francisco's Blue Truck Studio answered a few questions about the 30th Street project.
Location: Manhattan Beach, California, USA
Client: Withheld
Architect: Blue Truck Studio
- Design Principal: Peter Liang
- Project Team: Eric Reeder, John Flaherty, Xuhan (Ben) Shi
Landscape Architect: Romana di Suvero
Interior Designer: Mary Valaika Design
Contractor: Rough Workshop (Bryan Bethem)
Site Area: 6,600 sf
Building Area: 3,075 sf
This was a direct inquiry from the client based on our work with other members of the family. Despite being an "out of town" architect from San Francisco, their interest in our particular style of architecture compelled them to work with us instead of more local firms.
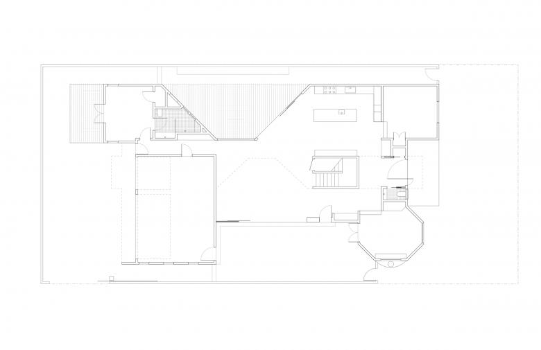
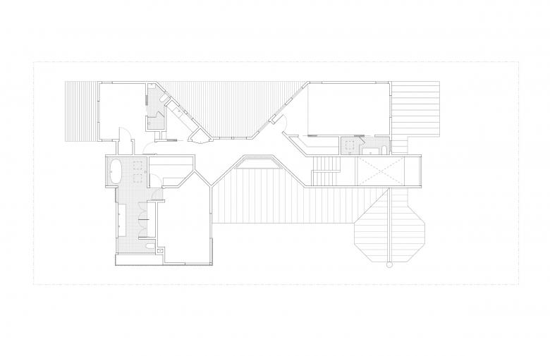
"30th Street" is a wholesale remodel of a house originally built in the 1990s with somewhat wild geometry, such as octagon-shaped rooms. The family who bought the house felt it was too garish and approached us with a directive: tone it down. The result was a complete gut renovation with reconfigured interiors and new finishes and fixtures throughout. We also remastered the exterior to create a quieter form with new openings, slatted siding, and new metal roofing.
The family was inspired by the architecture of Sea Ranch, a Northern California coastal community. The Sea Ranch aesthetic is reductive architectural forms and geometry that's tucked into the landscape with strong connections to the coastline context. Our vision for this home was for it to be calmer, with simple building forms and more rational interior spaces. We aspired to more privacy, mitigating the bountiful daylight, and enjoyable, livable spaces both indoors and out.
The loud and severe geometry of the existing architecture was softened and rationalized through the design update, through both layout improvements and material palette considerations. The original house also suffered from periods of excessive daylight, so much so that our design response included reconfiguring windows and moments of slatted siding to screen the sun and provide privacy from the street. The new siding also serves to simplify the form of the house and tie together a highly articulated building form.
Particularly successful is the calm organic charm of custom milled siding. Made from Alaskan yellow cedar, it was chosen specifically for how it weathers and ages. It will soften and grey over time, creating rustic patina reminiscent of Sea Ranch and succinct with the muted earthy tones of its calm beach-town surroundings.
Email interview conducted by John Hill.















