US Building of the Week

Beloit Powerhouse

Studio Gang | 17. January 2022
Photo © Tom Harris, courtesy of Studio Gang
Project: Beloit Powerhouse, 2020
Location: Beloit, Wisconsin, USA
Client: Beloit College
Architect: Studio Gang
Associate architect, electrical engineer, plumbing engineer, fire protection engineer, structural engineer, LEED consultant, commissioning consultant: Angus Young Associates
Civil engineer: R.H. Batterman & Co.
Lighting and mechanical/environmental engineer: dbHMS
Landscape architect: Applied Ecological Services
Acoustics and A/V consultant: Threshold
Signage, wayfinding consultant: 3st/Span
Pool consultant: Ramaker & Associates
Athletic & recreation design consultant: Hastings+Chivetta Architects
IT consultant: True North Consulting Group
Cost consultant: Dharam
Aerial (Photo © Tom Harris, courtesy of Studio Gang)
Please provide an overview of the project.

The Powerhouse transforms a decommissioned power plant into a new student union for Beloit College, centered on recreation and wellness. Located along the Rock River, adjacent to the College’s campus and close to downtown Beloit, WI, the Powerhouse combines an assemblage of historic buildings that made up the Blackhawk Generating Station (constructed between 1908–1947) and adds a new field house. The design retains architectural features and industrial equipment from the original structures while incorporating new sustainable practices and lively gathering spaces that encourage students to mix with each other and the larger Beloit community.

Field House at Dusk (Photo © Tom Harris, courtesy of Studio Gang)
What were the circumstances of receiving the commission for this project?

We responded to an RFP in 2013, and were one of several firms interviewed by the college. Right from the start, we were excited about the possibilities of reinventing an industrial building type that is increasingly falling into disuse. We shared a vision with Beloit College for what the project could be, and immediately saw a lot of opportunity to build a stronger connection to the river for the whole community while also creating a new, highly sustainable space for students to build relationships on campus.

Old and New (Photo © Tom Harris, courtesy of Studio Gang)
What are the main ideas and inspirations influencing the design of the project?

Beloit College President Scott Bierman had the original idea for this project. He had identified that the college needed three new buildings — a student center, a health center, and a recreation building — and when he was running by the old power plant one day, he had the idea to breathe new life into this space and combine all three programs under one roof. The blending of those programs was really compelling to us, as our work looks at how we can build relationships between people. The other big appeal of the project was thinking about how to re-use industrial buildings like these as they reach the end of their life and so they can become assets instead of blight for communities.

Turbine Hall (Photo © Tom Harris, courtesy of Studio Gang)
How does the design respond to the unique qualities of the existing building?

The ideas and inspiration for this project — and in our re-use work more broadly — is very much informed by starting with what is already there. In this case, we looked closely at how the building had grown in the past — as a sequence of four buildings constructed over time — and extrapolated from that pattern to suit the needs of the college. Our Field House creates a fifth volume at the north end of the building, continuing the existing pattern of building growth. It takes visual cues from the earlier structures, echoing the elegant, long windows in the historic buildings in a very modern, sawtooth facade that provides additional benefits of diffuse light and natural ventilation, ideal for sports activities. 

Turbine Hall – Before (Photo © Tom Harris, courtesy of Studio Gang)

When we began working inside the old power plant, we discovered that each building addition had its own structural system and wall construction, designed to be robust enough for heavy machinery. Once we removed that equipment, we found opportunities for it to carry additional architectural elements. Most notably, a new running track is hung from the existing structure and ties all the additions together to create a continuous loop through the old and new spaces. We kept some of the equipment that was inside, painting them to become features that the Beloit College students have embraced. We also kept the iconic smokestack, adding a window at the bottom to turn it into a kind of periscope.

Taken together, the buildings created a much grander central space than we could likely have ever achieved in a ground-up construction project there. That is one of the beautiful side effects of reusing an existing building: sometimes you are able to get much more space.

Turbine Hall (Photo © Tom Harris, courtesy of Studio Gang)
How did the project change between the initial design stage and its completion?

During the design process, we decided to have the building landmarked, which meant that some of the design decisions, especially having to do with updating the existing facade and structure, had to be coordinated with the state historic preservation agencies and did impact design decisions. As one example, we had initially planned to insulate the building from the exterior and re-clad it, but in order to meet historic preservation requirements, we instead had to retain the historic facade and upgrade the insulation and windows from the inside. The Powerhouse is now being used as a precedent project statewide for bringing together new additions with historic building fabric under the Wisconsin landmark process. 

Turbine Hall – Before (Photo © Tom Harris, courtesy of Studio Gang)
Was the project influenced by any trends in energy-conservation, construction, or design?

Sustainability was always at the forefront of this project, starting with reusing the existing building to limit embodied carbon, but also in how we thought about operational energy of the building. Beyond upgrading the existing building envelope and windows, we implemented a highly efficient HVAC system for the existing building and a very low-energy system for the addition. Designed with the engineers at dbHMS, this Powerhouse uses radiant panels that harness energy from the adjacent Rock River for most of the heating and cooling needs, improving comfort within the building and maintaining the highest air quality while also minimizing total energy use.

The new building volume, built out of insulating polycarbonate panels, uses a very low energy fan-assisted, passive ventilation system with night cooling. Facade panels let in abundant natural and diffuse light as well as solar heat, reducing the need for heating in winter. In the summer, hot air is extracted via fans in the roof and large, operable hangar doors which provide fresh air exchange day and night.

Running Track (Photo © Tom Harris, courtesy of Studio Gang)
What products or materials have contributed to the success of the completed project?

The polycarbonate material we used for the Field House exterior, manufactured by Extech, was key to making that addition work. It is one of the few materials that allows the space to be bright but also doesn’t create harsh shadow lines that can be problematic in a sports setting by making it hard for players to see the ball. The way that we designed the wall systems, using this polycarbonate, also allows that addition to really breathe, so much so that it has been classified by the College as an “outdoor space” under their current COVID airflow regulations, which means it has gotten a lot of use over the last year and a half as a space for students to gather and practice when outdoor temperatures meant they otherwise wouldn’t have been able to.

Email interview conducted by John Hill.

Swimming Pool (Photo © Tom Harris, courtesy of Studio Gang)
Field House (Photo © Tom Harris, courtesy of Studio Gang)
Site Plan (Drawing: Studio Gang)
Ground Floor Plan (Drawing: Studio Gang)
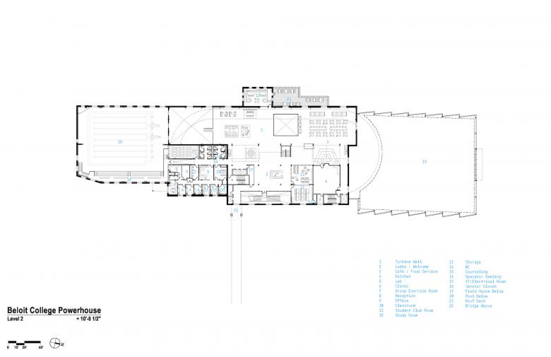
Second Floor Plan (Drawing: Studio Gang)
Third Floor Plan (Drawing: Studio Gang)
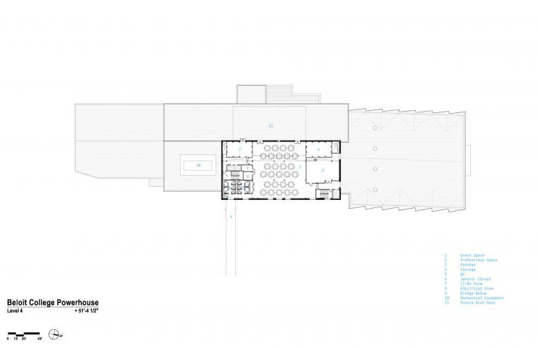
Fourth Floor Plan (Drawing: Studio Gang)
Longitudinal Perspective Section (Drawing: Studio Gang)
Axon (Drawing: Studio Gang)
Sustainability Features (Drawing: Studio Gang)

Other articles in this category