World Building of the Week

Center for Inclusive Growth & Competitiveness for TAPMI

The Purple Ink Studio | 27. October 2025
Photos: Suryan Saurabh, Pranit Bora Studio
What makes this project unique?

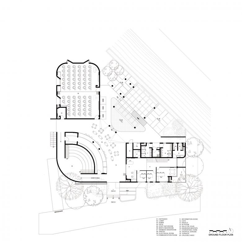
The Center for Inclusive Growth & Competitiveness is nestled inside the 40-acre residential campus of TAPMI located on a hillock, overlooking a picturesque valley with views of the forested green canopies. Occupying a humble land parcel of 5,000 square feet, it holds a significant position within the campus, offering a dynamic interplay between its immediate context and the broader environment.

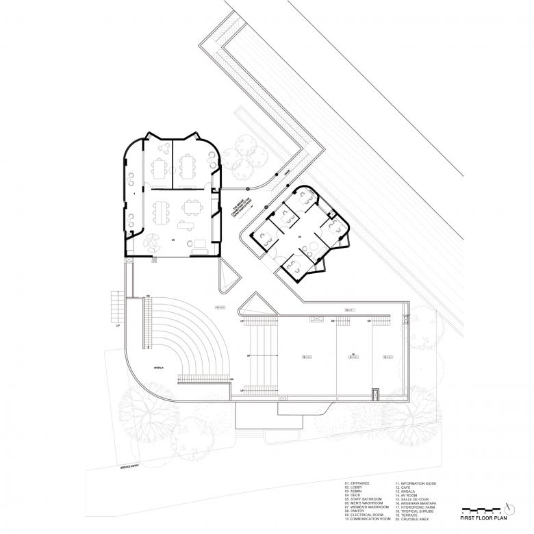
The client’s brief was deeply rooted in the institution's core values, emphasizing the design of academic spaces that inspire collaboration and meaningful interaction. The program, which included classrooms, administration, workshops, and a small cafeteria, could be accommodated in a ground and upper level. This raised a pivotal question for us: Could the project move beyond fulfilling the spatial requirements and redefine what academic places mean for a place like Manipal? Reinterpreting the conventional academic block, the intent was to design spaces that transcended beyond academic hours, reimagining them as community hubs.

Photos: Suryan Saurabh, Pranit Bora Studio
What is the inspiration behind the design of the building?

The idea of craft as construction had two distinct approaches coming together. The regional context took a strong point in the design process, the idea of craft also weaved a strong dialogue with the building through the bamboo parasols.

With the amphitheater serving as a porous connectivity hub, it was imperative to cover the terrace given the climate context. We drew inspiration from the chhatris made of bamboo, commonly found in the ghatscapes of Varanasi, India. These sunshades signify the starting point for various commercial, religious, and recreational activities. Providing shelter, chhatris stand not only as architectural elements but also as symbols of cultural continuity for local artisans.

We engaged with craftsmen and empowered them to utilize their tool, bamboo, in a very different scale. The network of parasols covered the terrace, intersecting at strategic locations to create a cohesive and functional space.

Photos: Suryan Saurabh, Pranit Bora Studio
How did the site impact the design?

The small parcel of land inside the campus set aside for the extension of the academic block occupied a residual corner land abutting an internal campus road. Lacking immediate contextual significance, the design approach sought inspiration from the larger context and aligning with the core values of the institute.

The parasols, placed at different heights, create a sense of tactility and mimic the tree canopies observed in the valley.

Photos: Suryan Saurabh, Pranit Bora Studio
To what extent did the owner, client, or future users of the building affect the design?

Manipal is a modern town along the coasts of Southern India. Its development began in early 1953, with a population of 2000-5000 people. Today, Manipal is home to an estimated 25,000-30,000 students, constituting roughly 50-60% of the city’s population. With the infrastructural blocks mushrooming, the urban fabric becomes rigid and devoid of social spaces for the young floating population. By re-imagining academic spaces, TAPMI Centre for Sustainability seeks to address this imbalance. Reinterpreting the conventional academic block, the intent was to design spaces that transcended academic hours, re-imagining them as community hubs.

The building extends outwards, expanding its functionality into community spaces, for events and gatherings and often acting as a thoroughfare connecting the terrains at different levels. Thus evolving to meet the demands of modern learning while embracing the cultural roots and empowering the “now” to be future-ready. 

Photos: Suryan Saurabh, Pranit Bora Studio
Were there any significant changes from initial design to completion?

The design brief was an open-ended requirement, the creation of program with flexible and collaborative learning spaces became integral to the design process. The very essence of the design right from the intial design to completion was made possible by the client’s trust in the vision and their continued support throughout the journey.

Photos: Suryan Saurabh, Pranit Bora Studio
How does the building relate to other projects in your office?

With India undergoing a remarkable transformation, the country's cultural landscape is witnessing a dynamic evolution. We see architecture to be a powerful catalyst in this shift. Drawing from the profound wisdom and timeless stories of the past, our works seek to articulate ideas that embody a bold and uniquely Indian Narrative.

We believe academic spaces can be more than just static entities, actively changing the urban fabric. The TAPMI Centre embodies many of the core values that define our practice-  non-linear thinking, porosity and adaptability. Here the focus was on decoding the brief and creating architecture that shapes the culture, encourages interaction and remains rooted in discovery. 

Email interview conducted by John Hill.

Photos: Suryan Saurabh, Pranit Bora Studio
Photos: Suryan Saurabh, Pranit Bora Studio
Photos: Suryan Saurabh, Pranit Bora Studio
Photos: Suryan Saurabh, Pranit Bora Studio
Project: Center for Inclusive Growth & Competitiveness for TAPMI, 2024
Location: Manipal, India
Client: T. A. Pai Management Institute (TAPMI)
ArchitectThe Purple Ink Studio, Bengaluru
  • Design Principal: Akshay Heranjal
  • Project Architect: Nishita Bhatia
  • Project Team: Arpita Pai, Jinan Fuloonah, Aziz Rajani, Jaikumar, Sujith Kamath
Structural Engineer: Ace technocrats pvt ltd 
MEP/FP Engineer: Sobha Limited
Principal Landscape Architect: Aditi Pai
Interior Designer: Rajvi Shah, Anareen Reynolds
Contractor: Blueladder Ventures, Akhil Associates 
Bamboo Works: Bamboo Pecker
Furniture: Beruru, Chesters
Site Area: 1,030 m2
Building Area: 1,145 m2
Drawing: The Purple Ink Studio
Drawing: The Purple Ink Studio
Drawing: The Purple Ink Studio
Drawing: The Purple Ink Studio
Drawing: The Purple Ink Studio

Related articles 

Featured Project 

Atelier KI JUN KIM

House by the Wall

Other articles in this category