US Building of the Week
Chiles House
Billed as “deeply affordable” by its developers, Chiles House in Portland is considered the first completed mass timber affordable housing in Oregon. Designed by All Hands Architecture, the building's 27 units provide transitional housing for people currently experiencing homelessness and for international refugees. Architect Ben Carr answered a few questions about the project.
Location: Portland, Oregon, USA
Co-Developers: Sister City & Catholic Charities of Oregon
Architect: All Hands Architecture
- Design Principal: Ben Carr
Civil Engineer: Froelich Engineers
MEP/FP Engineers: Piper Mechanical, Squires Electric, Red Hawk Fire Protection
Interior Designer: All Hands Architecture
Acoustical Consultant: Aacoustics
Solar Consultant: Elemental Energy
Energy Modeling: Alentuur
Contractor: Truebeck Construction
Mass Timber Fabricator: Kalesnikoff
Site Area: 6,259 sf
Building Area: 20,000 sf
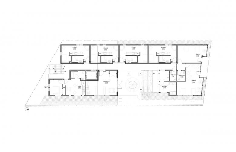
Chiles House is an infill affordable housing complex designed by All Hands Architecture. Like many cities, Portland, Oregon, is currently experiencing a housing crisis, and the project brief was to bring uplifting housing to the city's most vulnerable citizens as quickly as possible. The building provides transitional housing to people that are currently experiencing homelessness, as well as recently arrived international refugees. Both of these groups have endured trauma, and the building utilizes trauma-informed design to create a calm environment that lowers emotional stress. Open-air, naturally lit circulation and exposed wood ceilings provide a healing living experience that is all too rare in transitional housing. Ground-floor offices provide support services for the residents, with further wraparound support from the Catholic Charities of Oregon headquarters in the building next door.
Chiles House is the first mass timber affordable housing built in Oregon, and took less than a year to get from groundbreaking to completion. The project was financed with almost no public funding using a unique pro forma created by Anna Mackay of Sister City and the Catholic Charities of Oregon. The building proves that this hybrid construction and financing model can and should be used for affordable housing in other locations as well.
Chiles House is a cohesive expression of the beauty of wood, which was used as the dominant structural material for elements above grade. Natural materials have been proven to help mitigate environmental stress on building residents, especially when used in concert with other biophilic design strategies. Key design features include spruce cross laminated timber (CLT) ceilings and roofs, fir post-and-beam superstructure, fir glue-laminated beams at the bay picture windows, spruce bay window seats, and spruce slat walls at the stairs which function as fall protection and access control while allowing natural light to come through.
The courtyard serves as a metaphorical heart for the community with an oak tree at its center, and amphitheater seating to sit and socialize with neighbors or enjoy the view. Natural lighting in common areas, including the laundry, provides a consistent connection to the outdoors and surrounding trees, and also beautifully highlights the warmth of the exposed wood elements.
The infill site in Southeast Portland posed multiple challenges, with frontage along busy Powell Boulevard to the north and a steep grade down towards the south. Working closely between the civil engineer and contractor, the basement design made efficient use of the site slope without excessive excavation costs. The narrow mid-block site led the team to use panelized framed wood walls. These had numerous benefits, specifically the cost savings associated with speed of construction, as well as quality control in a dry shop environment nearby when the building was being framed during the wet winter months.
The site and the compressed schedule made this project an excellent fit for CLT; an entire floor level of panels could be craned into place in a single day, with just-in-time panel delivery on a floor by floor basis. Glulam beams for the next floor were delivered on the same flatbed trailer as the CLT to streamline the framing process. The use of panelized walls and mass timber saved significant construction time, getting residents into the building and off the street more quickly.
At the urban scale, Portland has deep historical connections to the timber industry and was founded as a logging town. Through the many ways this building celebrates the beauty of wood, Chiles House contributes to the legacy of lumber in Portland as well as the contemporary city skyline with its unique profile and attributes.
Initially, an interior double-loaded corridor design was considered; however, as the COVID-19 pandemic continued, it became clear that the corridors and stairs should be an exterior design to minimize indoor contact between residents. This became a design opportunity to celebrate the spans afforded by CLT. The open-air corridors needed minimal framing support due to the CLT panels, and the space was left open to encourage social engagement while allowing for privacy at the recessed unit entries. Shared porches at the ends of each corridor and along the courtyard provide views across the neighborhood, and give tenants a comfortable middle ground between the privacy of an apartment and the public street. Wood slat walls at the north end of the corridors create the option to combine units into suites, allowing flexibility for larger families.
As the first mass timber affordable housing completed in Oregon, Chiles House is part of a growing trend to use CLT floors and roofs for multifamily development in North America, which can also be seen in Europe. The Pacific Northwest is rich with timber resources, and mass timber presents an excellent opportunity to use local materials. The compressed timeline of the project was made possible by BIM modeling, allowing for seamless virtual coordination between the architect, consulting engineers, CLT fabricator, contractor, and client. Energy modeling was used to adjust insulation levels on the roof and help mitigate summer heat gain. In order to offset seasonal reliance on the grid, Solar panels were included on the roof. The project represents true collaboration with the client, contractor, engineers, and building officials to take action towards addressing the housing crisis in Portland.
Email interview conducted by John Hill.
Related articles
-
-
-
Spaces for Cars – And for People
Kennedy & Violich Architecture, Ltd. (KVA) | 02.03.2026 -












