Process Architecture
CompuTech City
Pre-engineered metal building systems are ubiquitous across the American suburban landscape, but most examples are, to put it mildly, architecturally uninspiring. Process Architecture took the system, exposed it outside and inside, made it an armature for solar panels, and in turn made a strong argument for elevating the quality of suburban commercial architecture. The architects answered a few questions about the recently completed project.
Project: CompuTech City, 2018
Location: Longwood, Florida, USA
Clients: CompuTech City & Billed Right
Architect: Process Architecture, Orlando, FL
Design Principal: Fielding Featherston
Project Manager: Daniel Harrison
Structural Engineer: ASE Engineering Services, Inc.
MEP/FP Engineer: Wilson & Girgenti, LLC
Landscape Architect: JCR Consulting
Lighting Designer: SESCO Lighting
Interior Designer: Process Architecture
Contractor: Evergreen Construction Management
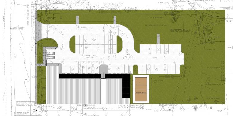
Site Area: 1.97 acres
Building Area: 10,230 sf
What were the circumstances of receiving the commission for this project?
The project was a design-build project created in collaboration with a construction management firm that had been approached by the client.
Please provide an overview of the project.
Accommodating the needs of a 24-hour modern workplace requires design solutions that strive for advancement and evolution in architecture. For this project, the design team was challenged to build upon the tech culture of the client while enhancing corporate identity. The client is an IT provider that implements round-the-clock support to the healthcare industry. The management relies on a family-like atmosphere, with a strong focus on positive daily interactions, to promote a high level of trust among the diverse staff composed of approximately 50 people. For its new headquarters, this tech organization sought an innovative, environmentally-friendly design that both accommodated required services and encouraged wellness in the workplace.
What are the main ideas and inspirations influencing the design of the building?
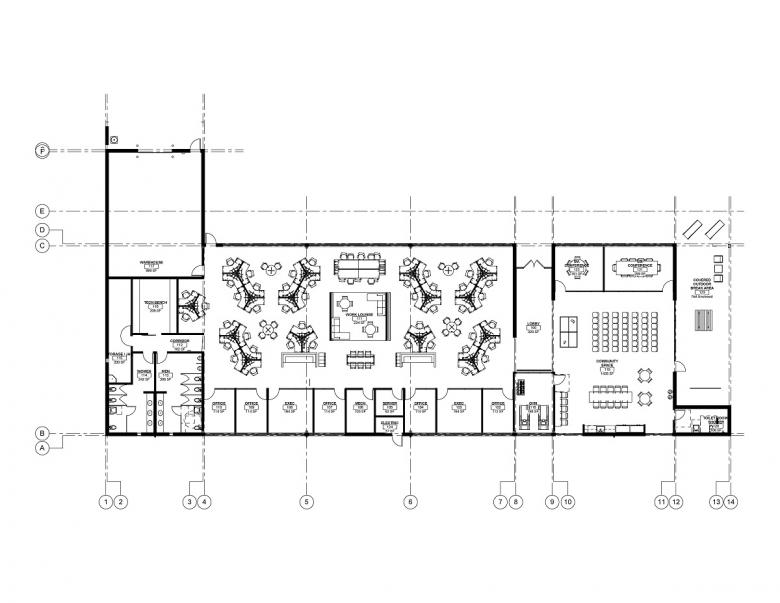
The primary concepts of the design are centered around Business Ecosystems and the Modern-Casual Workplace, and the architectural intersections of these precepts with the Community Story. This model depends upon the provision of both structured and non-structured workspaces to foster strong interpersonal relationships and promote individual and group productivity. A variety of workspace options are incorporated into the design, be it a lounge with soft seating, exterior recreation areas, or "activated zones" that encourage impromptu communications. These essential spaces of exchange within the workplace foster a sense of wellness for the employees and speak to the communal corporate environment.
The expansive sense of volume extends the full length of the interior, which is organized into three primary areas: warehouse, workplace, and community spaces. The interior workplace is divided into two areas, with open offices along the north façade and private offices situated on the south side of the building. This collaborative system enhances face-to-face interactions while also providing sequestered spaces for meetings and individual work. The lobby and fitness areas mark a transition from work to community. Within the community area, employees can gather informally, find a private area for breaks, or engage as a group. The solar canopy connects the gathering spaces to the adjacent green spaces provided for outdoor recreation to the east of the building.
How does the design respond to the unique qualities of the site?
The campus-like structure engages the landscape on a two-acre wooded site in Longwood, Florida, marked by tall pines and stands of oak trees. At the center, the 10,000-square foot headquarters building transforms a straightforward and efficient system — the pre-engineered metal structure — into a spatial experience with a modern aesthetic. The structural system of the building is exposed on the interior and penetrates the exterior envelope to create shaded areas and conceptually bridge the indoors and outdoors. Transparency and simplicity in the design maximize natural light throughout.
How did the project change between the initial design stage and the completion of the building?
The original building form created at the project’s inception remained strong throughout the development of the design. Primary changes to the design were related to the location of the building on the site and its orientation for optimal photovoltaic function and access to indirect natural light to the interior spaces.
Was the project influenced by any trends in energy-conservation, construction, or design?
The building’s principle façade opens to the north and connects to a projecting solar canopy, continuing the horizontal building form into the surrounding landscape. The innovative glass-photovoltaic panels provide cover and generate low-cost electricity in all weather conditions, including low light and on cloudy days. Throughout the building, the façade is opened and broken-up with either storefront glazing or punched openings.
What products or materials have contributed to the success of the completed building?
The pre-engineered metal building system contributed to the simplicity of the construction and impact of the building form. Likewise, it is a low-cost building system. The innovative glass-photovoltaic panels provide cover and generate low-cost electricity in all weather conditions, including low light and on cloudy days.
Important Products/Manufacturers:
Pre-engineered metal building system: Nucor Building Systems
Storefront/Curtainwall: Kawneer North America
Photovoltaic system: Onyx Solar Energy SL
Email interview conducted by John Hill.
Related articles
-
-
-
Spaces for Cars – And for People
Kennedy & Violich Architecture, Ltd. (KVA) | 02.03.2026 -







