Ensamble Studio
Cyclopean House
Ensamble Studio's Cyclopean House may look like an industrial building dropped into a residential neighborhood near Boston, but its utilitarian aesthetic is the result of some highly innovative thinking on lightweight construction and how suburban homes function. The Spanish architects answered a few questions about the project, which serves as their US home and office.
Project: Cyclopean House, 2015
Location: Brookline, Massachusetts
Architect: Ensamble Studio, Madrid and Brookline, MA
Design Principals: Antón García-Abril & Debora Mesa
Project Team: Javier Cuesta, Ricardo Sanz, Borja Soriano, Massimo Loia, Walter Cuccuru, Valentina Giacomini, Marietta Spyrou, Juanjo Fernández, Federica Zunino, Marian Stanislav, Chung-Wen Wu, Yannis Karababas
Structural Engineer: Jesús Huerga
General Contractor: Materia Inorgánica S.L.
Site Area: 265 m
Building Area: 240 m2
What were the circumstances of receiving the commission for this project?
Cyclopean House is our own house in Brookline, Massachusetts, that we built when we moved (or better say divided) our home and office to the US. The house was the opportunity to test some technologies we had started to develop in Spain and continued in our research laboratory at MIT's POPlab (Prototypes of Prefabrication Laboratory).
Please provide an overview of the project.
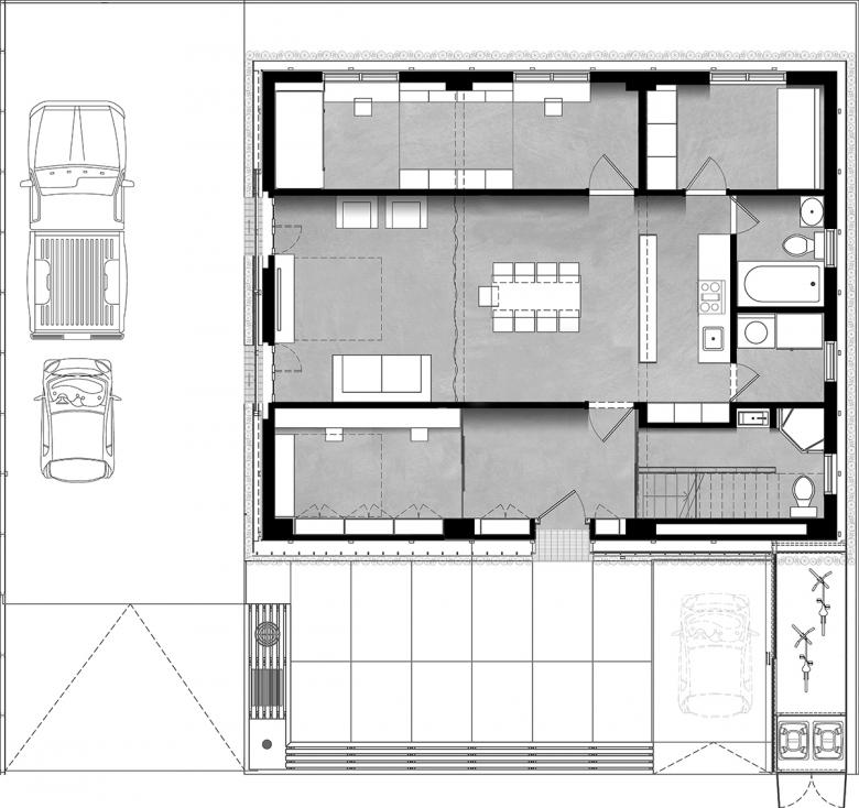
Cyclopean House is built in a residential neighborhood of Brookline on top of an existing residual garage structure. The premanufactured kit of domestic parts that composes it transforms the original one-story commercial building into a two-story residential unit, technologically and spatially adaptable to the life of its users – us!
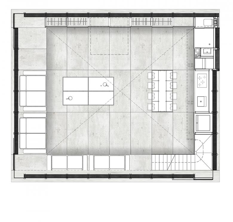
Complementing and contrasting with the compartmented space at ground level, the new assembled architecture defines an open-plan, double-height monumental room. In it, structure and infrastructure concentrate on the perimeter while the rest of the plan is cleared to be shared by different functions during the day or transformed over time. Each prefabricated element specializes in one action: cooking and bathing, storing, seating, dining, sleeping, working, watching. Together they resolve all the primary domestic activities and configure a thick enclosure that embraces space to provide adequate thermal comfort, privacy, and strategically located openings guaranteeing cross ventilation, light and diagonal views. Visual contact with the exterior is minimized on the three sides that adjoin neighbor houses and a big opening – the "eye of the cyclops" – created on the street side where the interior space can look at the trees in front and imagine itself in the midst of a park.
What are the main ideas and inspirations influencing the design of the building?
Cyclopean House is built – using the vigor of the builder and the ingenuity of the engineer – to start a journey from the place of its manufacture, Madrid, to the place where it definitely lies, Brookline. It represents a trip we made personally and professionally a few years ago, and it is the testing field of our ideas on how to impact housing markets in the US and globally. Prefabrication productivity and efficiency are matched with creative design and high quality construction at a reasonable cost.
How does the design respond to the unique qualities of the site?
The one-story old construction used to be the ugly duckling of the neighborhood. The new architecture gives new meaning and life to the old by observing the context. It matches the height of the houses nearby and respects their privacy with strategically positioned openings. From the multipurpose space, the big window is able to capture the view of the sky and the high trees across the street, and it becomes a living painting that represents the passing of the seasons. On the roof garden the view becomes panoramic expanding across the sea of rooftops that create the landscape of this particular neighborhood in Brookline.
How did the project change between the initial design stage and the completion of the building?
The project had to be perfectly designed and engineered to accurately sit on top of the existing garage and to be able to be prefabricated and assembled with no conflicts on site. When manufacturing started in our Madrid factory we took some time to test different solutions and research while building the prototype. Once completed off-site, no changes were made; the elements were transported and the assembly process that we had carefully choreographed happened with great precision and synchronization.
Was the project influenced by any trends in energy-conservation, construction, or design?
The project is part of our research in ultra-light prefabricated systems and flexible spaces. The premanufactured kit of domestic parts that composes the house effectively resolves structure, enclosure, mechanical services, finishes and furniture in each of its large elements, enabling the quick assembly of the new architecture. This technology mixes the modularity of American wood-frame construction with the solidity of the European construction we like, adding the possibilities of industrialization and good design.
The project also explores the opportunities of inhabiting a multipurpose domestic space that can be used 24/7: by giving all the square meters to the same room, a monumental space is created that is used for everything!
After completing the house, we are fit to translate the lessons learned to collective housing projects that can benefit more people.
What products or materials have contributed to the success of the completed building?
Ultra-light construction systems give form to the new elements: solid cores made of foam (98% air) reinforced by steel profiles and fire-proofed by a thin layer of cement and fibers. Dry joints and material lightness enable the different elements to be produced off site – including finishes and fixtures – comfortably transported using standard maritime containers, and quickly placed together following a rhythmic sequence that was carefully planned beforehand. Due to the lightness of the addition, the preexisting structure – built with concrete block – can support the new dead and live loads without the need to dig new foundations, positively affecting the economy of the intervention.
Email interview conducted by John Hill.
Related articles
-
-
Spaces for Cars – And for People
Kennedy & Violich Architecture, Ltd. (KVA) | 02.03.2026 -
-














