US Building of the Week
Hollywood Hills Home
A great room sits at the heart of this house on a steep slope in the Hollywood Hills. Even though it has views of Los Angeles, the space feels like a Manhattan industrial loft, with large windows and steel framing. That was intentional, as explained by Kristen Becker, who started the house's design while at Olson Kundig and finished it with her new firm, Mutuus Studio.
Location: Los Angeles, California, USA
Client: Withheld
Architect: Mutuus Studio
- Design Principal: Kristen Becker (mentored by Tom Kundig of Olson Kundig)
- Project Manager: Renee Boone
- Project Team: CJ Christiansen
MEP/FP Engineer: Creative Engineering Group
Landscape Architect: Andrea Cochran Landscape Design
Civil Engineer: Robert Newlon and Associates
Interior Designers: Kristen Becker, Mia Sara, Jerry Sarapochiello
Contractor: Dowbuilt
Construction Managers: Kajsa Junero and Kela Martinez
Site Supervisor: Chris Malon
Site Area: 11,768 sf
Building Area: 4,043 sf
Kristen Becker designed the client’s penthouse in the Tribeca neighborhood of New York City. That project was completed in 2010 by Mutuus Studio while Becker was living in New York. Upon returning to Seattle to have her second child, Kristen joined Olson Kundig and was an associate at the firm. The Hollywood Hills House is the second project that Becker designed for the clients. Becker designed this project while at Olson Kundig, under the mentorship of Tom Kundig. She completed the project with Mutuus Studio.
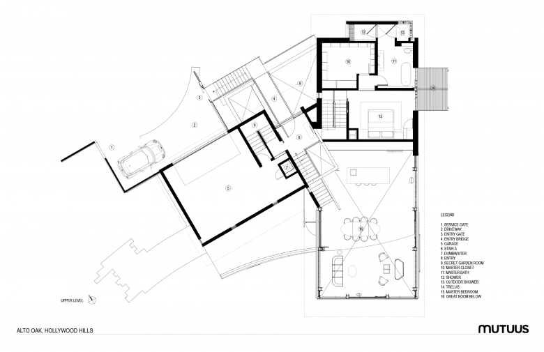
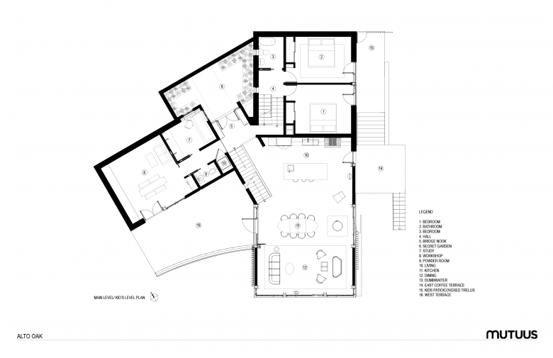
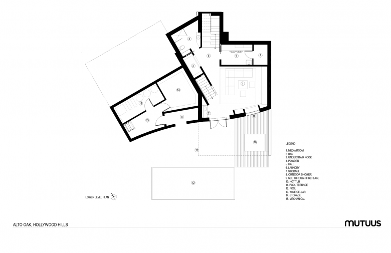
The house is situated on a steep 45% slope at the top of a hill in the Oaks neighborhood of the Hollywood Hills. It is situated on a 12,000 square foot lot and the house is just over 4,000 square feet. Primary spaces include three bedrooms, four bathrooms, study, media room, wine cellar, workshop and a great room (combined living, dining, kitchen) with a 13-foot high ceiling. The house includes covered parking for two, a pool and a hot tub.
The project started with the idea of designing a house that had the feeling of a New York loft. Becker has designed their loft in Tribeca, and the clients wanted to bring a little of that feeling to their house in LA. The clients love to travel and the castle-like feel of the large great room was an important factor in the design. Two rectilinear interlocking volumes comprise the parti diagram for the house. The main living / dining / kitchen and bedrooms in one volume with the garage / workshop and study in the second volume. At the intersection point is a knuckle that brings together the circulation between the volumes. The interstitial spaces that resulted from the angle of intersection created opportunities for multiple outdoor spaces including a sunken secret garden.
The building site is just under 12,000 square feet and the 4000 square foot home is nestled into the hilltop. The private bedrooms are tucked into the hill and the public great room (living/ dining / kitchen) cantilevers out towards the view.
The challenging site required creatively approaching the design needed to address site access from the top of the hill. The site slopes 45% and the lot is accessed from above where you arrive high and descend down into the main great room. It became an opportunity to rethink how we see public and private zones interacting. It was important that the entry through the garage and the formal entry meet at the same location at the top of the stair.
The early design sketches stayed fairly close to what was built. The steep slope and zoning constraints gave us a limited footprint to work with. The zoning restrictions are like invisible scaffolding that limits where you can position the building. For the Hollywood Hills residence, the major challenge that impacted the form was in dialing in the floor to floor heights within the zoning constraints of building on a such a steep slope.
Another significant challenge was the entry tower. We developed countless variations as to how to enter the building elegantly. As it is perched atop a hill, the tower acts as a glowing beacon in the Oaks neighborhood.
Our clients were passionate about including sustainable aspects to the design:
- PV panels on the garage contribute to an almost Net Zero energy cost for the clients and power the two Tesla chargers.
- There is a water crisis in California so it was imperative to our client that we conserve water as best we can throughout the project. We installed a large rainwater catchment system beneath the deck of the pool.
- The project includes a greywater system – an incredible hurdle to get approved due to California code.
- The project was required to meet the California Title 24 standard including lighting, appliances, and plumbing fixtures.
- The main roof has a partial green roof to capture runoff.
- We used BIM modeling to study the heat loads and adjusted the overhangs to allow for passive cooling and minimize reliance on the AC system.
- Sun studies were done to analyze sun and shade in for exterior garden and landscape areas and we were intentional in always having a place to go outside in the hot California sun.
- Windows are automated to open at the top of the stair to expel heat.
The building materials for the project are simple and elemental, comprised of architectural concrete, blackened steel and cedar cladding. The industrial-style Brombal steel windows and bronze main entry door were imported from Italy.
Email interview conducted by John Hill.

















