World Building of the Week
Pritzker Military Archives Center
For twenty years, the Pritzker Military Museum & Library was a tenant in existing buildings in Chicago, therefore lacking an architectural image. In May of this year, the nonprofit institution that was founded in 2003 opened its new bespoke home near Kenosha, Wisconsin — an angular steel and glass building that is notable as one of Helmut Jahn's last designs. The architects at Jahn/ answered a few questions about the Pritzker Military Archives Center.
What were the circumstances of receiving this commission?The Pritzker Military Archives Center was a direct commission based on the interviews of three architects. Our presentation was as much about the building as it was about the spaces between buildings and the importance of landscape.
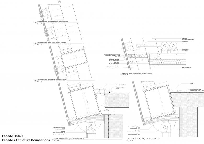
The building is inspired by our continued interest in designing high-performance buildings as well as celebrating the military. The structure is rough, with exposed bolts and unground welds similar to the amphibious landers of World War 2 that inspired the basic shape of the building. The glass enclosure is precise and disciplined like the military and it celebrates the contributions of the citizen soldier.
The 17.5-acre site was largely agricultural. Some regrading was required to realize the landscaping and it was largely achieved through the excavation for the basement. The landscape was developed to complement the building, its basic military idea, and as a place for the community to enjoy its walking paths. The landscape design utilizes native species reclaiming what was once prairie.
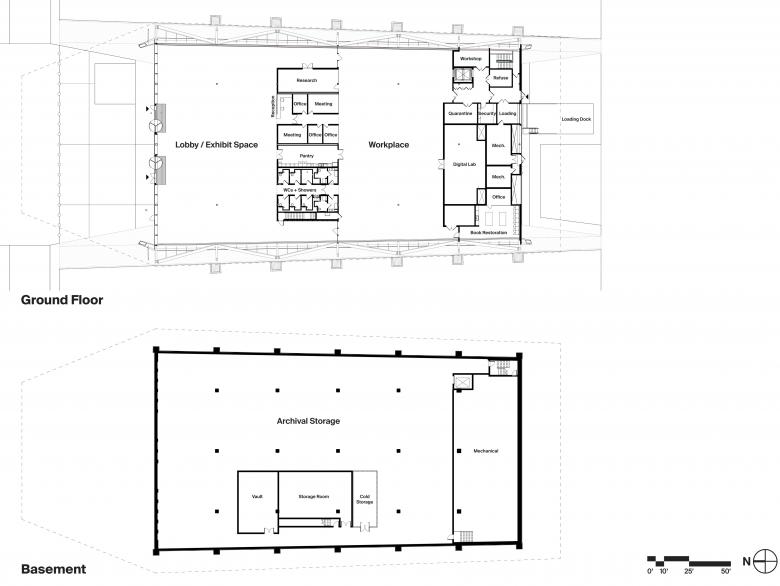
The design and planning of the building resulted from the owner’s initial program and was refined as the building design developed. This included the addition of a small exhibition space — elevating the building to a public and cultural institution celebrating the contributions of the citizen soldier.
The building is the continued exploration of simplicity, higher performance, and the idea of a constructed attitude; that is that the construction of the building is easily understood.
Email interview conducted by John Hill.
Location: Somers, Wisconsin, USA
Client: Archives & Armory of PMML WI LLC
Architect: Jahn/, Chicago
- Design Principal: Helmut Jahn
- Project Architect: Philip Castillo
- Project Manager: Tobias Dold
- Project Team: Graham Bowman, Dan Cubric
MEP/FP Engineer: Cosentini
Landscape Architect: O2
Lighting Designer: RBDLI
Contractor: Pepper Riley
Facade Contractor: Glass Solutions Inc
Glass Manufacturer: Viracon
Site Area: 17.5 Acres
Building Area: 48,400 sf
Related articles
-
The Three-Body Problem: Trapped in a Wave Sandwich
Eduard Kögel, Scenic Architecture Office | 13.04.2026 -

















