World Building of the Week
Tākina – Wellington Convention and Exhibition Centre
Notable as the largest public project in Wellington, the capital of New Zealand, since the completion of the Wellington Regional Stadium in early 2000, Tākina – Wellington Convention and Exhibition Centre features a shimmering glass facade facing Wellington Harbour. The architects at Studio Pacific Architecture answered a few questions about the building that opened to the public in June 2023.
What were the circumstances of receiving this commission?Tākina – Wellington Convention and Exhibition Centre was built to attract international and domestic conferences, benefiting the city, region, and country while providing a place to share stories. The building represents Wellington’s largest infrastructure investment since the construction of the Wellington Regional Stadium two decades ago.
Construction began in December 2019, and Tākina opened its doors in June 2023. Designed for both locals and visitors, the ground floor is publicly accessible, while two upper levels are dedicated to private functions, drawing visitors to Wellington to learn, meet, and be inspired.
The goal was to create a versatile venue capable of hosting international conferences and exhibitions, positioning Wellington as a leading destination for global events. Studio Pacific led the design process. To generate creative responses to the brief, Studio Pacific held an internal design competition that produced a range of innovative ideas and interpretations of the project’s key themes.
As a gathering point within the city, Tākina’s design expresses in its form and materiality the essence of place.
The 18,000-m2 building is primarily clad in a shimmering glass skin shaped around a flowing form. The material of the glass cladding responds to differing light conditions throughout the day, giving variance to the building. At times, the glazing gives the building a monolithic appearance, while at other times it reveals a subtle inner structure and the activity within. The use of SEFAR glass, a first for New Zealand, further enhances this effect by creating a constantly shifting visual experience as light reflects differently off adjacent panels.
Structurally, Tākina is designed with resilience in mind. The building is base-isolated, minimizing damage during seismic events, while the diagrid structure provides stiffness and reduces movement, protecting the fitout and facades. This also allows flexibility for future interior changes.
The building’s name, gifted by the local iwi (tribe) Taranaki Whānui, means to invoke, to summon, to connect, to bring forth, in te reo Māori. In Wellington, the most powerful force that is summoned here is the wind. Some days the winds rage across the harbor, blowing everything before them. At other times, they are soft, welcoming, calm.
To capture the spirit of the building, a mouri stone was also gifted to the building. The specific stone was sourced by Kura Moeahu, kaumatua (elder) of Te Āti Awa iwi, who was drawn to it in Te Awa Kairangi (Hutt River). While sometimes hidden within buildings, the mouri stone at Tākina is placed at the forefront of the ground floor to help tell the story of the building.
Tākina’s sculptural form is inspired by Wellington’s maritime environment, dramatic weather patterns, and landforms, as well as the Māori legend of Te Ūpoko-o-Te-Ika-o-Māui, which tells the story of the formation of Wellington Harbour. The resulting design is both organic and dynamic, seamlessly integrating these influences into a striking architectural statement.
The design draws heavily on regionalism, exploring what makes a building uniquely ‘Wellington’ and referencing the earthy and robust coastal conditions of the site's maritime location. This connection to the land and sea is central to the building’s identity, ensuring that Tākina resonates with both its physical and cultural context.
Internally, the design of Tākina is deliberately restrained with a material palette that draws from the earthy and vibrant colors of Wellington. A bespoke carpet design, inspired by New Zealand artist Roy Good, adds layers of vibrant reds, rusty oranges, earthy greens and deep ocean blue to define circulation and functional areas. The bold and overlapping colors of the carpet are used to diffuse large scale spaces and helps to define the circulation and function areas of the building. Seven different colorways and a unique pattern were designed specifically for Tākina.
Each level of the building is centered around a distinct inner box, housing the most internalized functions of the program. The timber-clad boxes, wrapped in natural American oak, shift in color from deep, dark stains to lighter tones as they ascend through the building – symbolically reflecting the Māori narrative of Papatūānuku (Earth Mother) and Ranginui (Sky Father). This shift in tone symbolizes a journey from the earth to the heavens, with the oak timber adding natural warmth and texture to the expansive spaces, enhancing both the aesthetic and the cultural meaning of the building.
Tākina’s site, formerly an empty mid-block lot, is prominently located on Wellington’s waterfront opposite the national Museum of New Zealand–Te Papa Tongarewa. The area, formerly an empty lot, is framed by two of Wellington’s main streets, Cable and Wakefield, and is flanked by four distinct apartment buildings.
Geographically, the area plays a significant role in the urban landscape; for many, it is the first place that comes to mind when thinking of Wellington.
Given the site’s location on reclaimed land close to the harbor, the ground floor was elevated 3.5 meters above sea level to mitigate flood risks.
The site’s geometry has provided an opportunity for increased visual interest and a sense of movement along the street elevations, including variation to the skyline. The building’s sinuous façade echoes the concave and convex curves of Cable and Wakefield Streets, which foreshortens and lengthens the visual appearance of the building form. This creates a sense of movement that is accentuated by the dynamic play of light on the glazed bronze-colored exterior.
Given the site’s proximity to Te Papa Tongarewa, and narrow street corridor of Wakefield Street, much of the building is viewed from oblique angles. Wider elevated or long-distance views of the building can be seen from hillside suburbs of Kelburn and Mt Victoria.
Pedestrian connectivity was another key consideration, with links between Courtenay Place and the waterfront integrated into the building’s layout, making it both accessible and inviting.
Wellington City Council’s strategic vision for the project was to create a highly flexible and sustainable venue that would serve a variety of functions — international conferences, exhibitions, and large public gatherings. This required a building that could adapt to different event sizes and configurations. Flexibility in the internal spaces was a key aspect of the brief, leading to large, column-free areas with operable walls that can be easily reconfigured.
Sustainability was another key focus. The Council’s focus on environmental performance led to the integration of advanced systems, earning the building a 5-star Green Star certification, the first convention center in New Zealand to do so. The building emits 60-70% less carbon and uses 60-70% less energy than comparable buildings. The building’s future-proofed design ensures that it can continue to serve Wellington’s events sector for years to come.
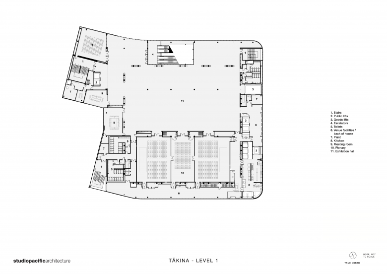
The building was designed to be extremely functional from the outset, with key spaces arranged around a perfectly square diagrid structure. Within that structure sits an internal box-like form, which is repeated across each floor level, housing the large-scale exhibition and plenary spaces. All major servicing has been kept outside of that central box, allowing complete flexibility in the internal areas. Future-proofing was always front of mind in the design of Tākina, with the intention of supporting the repurposing of the building in the future, should it be required.
When the Wellington City Council initially engaged developer Willis Bond, they were looking to create a film museum with supplementary conference spaces. As the project evolved, the film museum component was removed, allowing the design to focus entirely on the convention and exhibition spaces. The arts were at the heart of the early brief – as much as they are of Wellington — and have remained an integral component throughout the brief's development, ultimately leading to the creation of Tākina.
This shift to a full convention and exhibition center allowed the design to be refined, simplifying the internal planning and adding glazing to the external facade — which became a defining feature of the building.
Despite this shift, the exterior’s sculptural form and cultural significance remained central to the design. The final outcome stayed true to the initial vision, with adjustments ensuring that the building could better meet the city’s needs while maintaining its symbolic connection to Wellington’s natural and cultural landscape.
Tākina reflects Studio Pacific’s broader commitment to creating spaces that are not only functional but also deeply connected to their surroundings. Like many of our projects, Tākina combines a strong narrative connection to its location — drawing from Wellington’s maritime history and Māori mythology — with innovative design and environmental performance.
This building aligns with our practice’s cross-disciplinary approach, integrating architecture, interiors, landscape, and urban design to create spaces that are people-centric. The sustainability features in Tākina, which have earned it a 5-star Green Star design and custom-built rating, are part of our ongoing commitment to environmentally responsible design, seen across many of our other projects.
From large-scale commercial developments to community buildings, Tākina continues the Studio Pacific approach of delivering innovative, context-driven architecture that serves both the client’s needs and the broader community.
Email interview conducted by John Hill.
Location: Wellington, New Zealand
Client: Wellington City Council
Development Manager: Willis Bond & Co
Architect: Studio Pacific Architecture, Wellington
Design Principal: Stephen McDougall
Project Architect: Thane Houston-Stevens
Project Manager: Daryl Calder
Project Team: Agata Halagarda, Assad Jaffer, Bret Thurston, Charlotte Warren, Christie Allen, Daryl Calder, Dorian Minty, Gertrude Gloria, James Ross, Jon Fraser, Karl Frost, Laura Trama, Mark Fletcher, Max Wiles, Nick Barratt-Boyes, Nick du Bern, Peter Wise, Sarah Bookman, Simon Faulknor, Sophie Steele, Stephen McDougall, Thane Houston-Stevens, Yuan Zhang, Zelia Costa Alves.
Structural Engineer: Dunning Thornton Consultants
MEP/FP Engineer: Beca
Landscape Architect: Studio Pacific Architecture
Lighting Designer: Beca and Studio Pacific Architecture
Interior Designer: Studio Pacific Architecture
Cultural Advisor: Kura Moeahu
Fire Engineer: Holmes Fire
Facade Engineer: Mott MacDonald
Quantity Surveyor: RLB
Acoustic Engineer: Marshall Day Acoustics
Project Manager: RCP
Surveyor: Spencer Holmes
Seismic Restraint Engineer: Harrison Grierson
Traffic Engineer: Stantec
Geotechnical Engineer: Tonkin + Taylor
Contractor: LT McGuinness
Site Area: 5,580 m2
Building Area: 18,000 m2
Important Manufacturers / Products:
- Glazing: Thermosash provided the building's cutting-edge glass facade, utilizing SEFAR glass with metallic-coated fabric laminated between panes. This creates a dynamic, changing exterior depending on light conditions and time of day. IGU with exterior layer of SEFAR® Architecture Vision inlaid polymer mesh (SGP Laminations), Dark Bronze.
- Cladding / Entry Soffits: Classic Metals Hook Seam and Angle Seam Aluminum Cladding System.
- Roof: The roof system, crucial for sustainability and acoustic performance, is by RoofLogic. It includes the Ultratherm Xtreme membrane with layers like the RL Acoustic Board and RL Roofboard, which help mitigate noise from external elements like rain. This system also integrates a rainwater harvesting mechanism that collects 30,000 liters of water, significantly reducing the building's water consumption.
- Color Scheme: The color schemes and materials inside the building reflect Wellington’s natural environment, with wood and other natural materials playing a major role.
- Carpet: Milliken Ontera Quattra 1x1m carpet tile, custom color and pattern.
- Timber Linings: American white oak, stained in three different tones (light, medium, dark).
- Additional Internal Linings: Autex Acoustics acoustic materials, Bestwood Melamine Panels, and Laminex Hardboard and Formica. The hardboard panels are complemented by brass details, contributing to a warm and natural interior aesthetic.
Related articles
-
-
-
-
Spaces for Cars – And for People
Kennedy & Violich Architecture, Ltd. (KVA) | 02.03.2026





















