World Building of the Week
Urmila Kailash Black Box, Kanoria Centre for Arts
Established in 1984, the Kanoria Centre for Arts in Ahbedabad was designed by Balkrishna Doshi, who worked out of his Ahmedabad studio, Sangath, until his death in 2023. Doshi's legacy is being carried out, in part, by Studio Sangath, led by Doshi's granddaughter Khushnu Panthaki Hoof and her husband Sönke Hoof. They recently completed the Urmila Kailash Black Box, an intimate performance and exhibition space at the KCA. Khushnu answered a few questions about the project.
What were the circumstances of receiving this commission?Kanoria features artist studios, art education programs for both children and adults, an art gallery, and facilities dedicated to various applied arts, including printmaking, sculpture, and ceramics. However, one element that was notably absent was a dedicated space for performing arts on the campus. This gap inspired the conception of the Black Box—a versatile venue designed to foster experimentation across multiple disciplines. Whether it’s theater, music, dance, lectures, or interactive exhibitions, the Black Box serves as a dynamic environment for creative exploration and expression.
Our brief was to design a Black Box for the center, with the freedom to explore our own creative vision. Integrating the structure with the surrounding buildings felt essential, even though the Black Box needed to be enclosed on all sides. Key design considerations included the landscape surrounding the space and the modulation of light within it. My collaborator, Sönke, and I aimed to create an adaptable environment that could be opened as needed. We envisioned solid windows that, when opened, would not only introduce intrigue but also allow for the diffusion of natural light, enhancing the atmosphere inside. This approach ensured a seamless connection between the interior and the exterior, hopefully enriching the overall experience of the space.
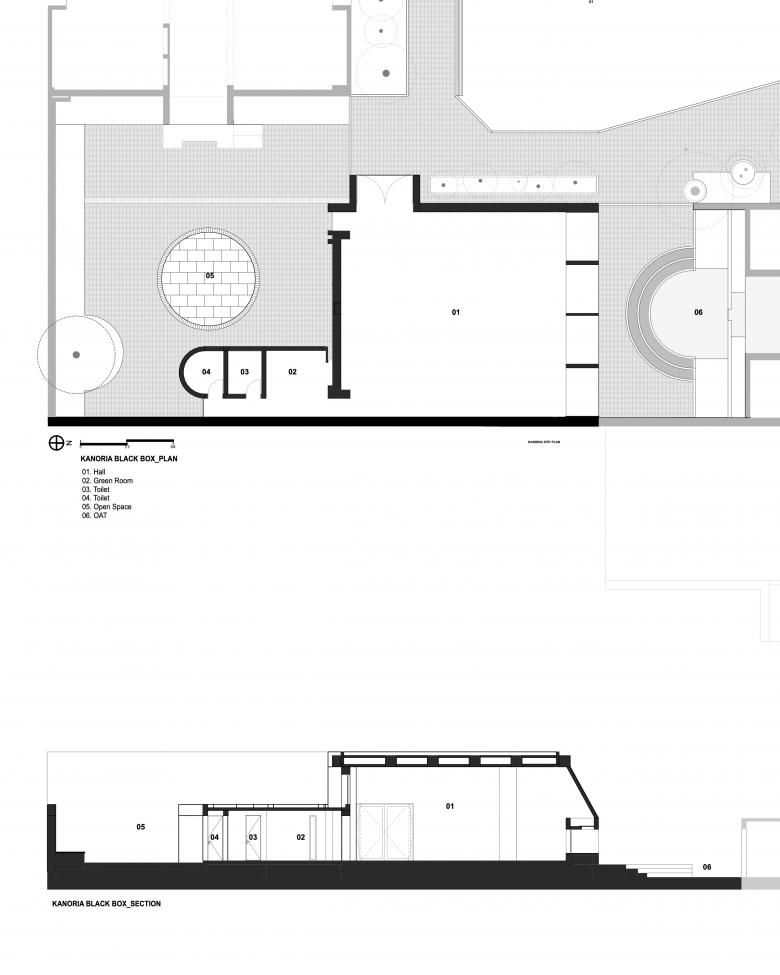
The Black Box serves as a bridge connecting the decades of buildings that have evolved on the Kanoria Center campus since 1984. It draws inspiration from the earliest studio spaces, merging those elements with the recently added gallery roof by Doshi. This synthesis has given rise to a new architectural typology that maintains a subtle presence while fostering connectivity. The sloping roof of the Black Box acts as a "pardi," a solid concrete wall that allows diffused light to enter from below, enhancing the interior ambiance. The strategically placed windows facilitate connections to the staircase and the surrounding artist studio spaces. Additionally, the main entrance establishes a dialogue with the entrance to the children's classrooms on the opposite side, promoting interaction and continuity throughout the campus. Additionally, the amphitheater designed to connect the levels of the Black Box and the office spaces provides an intimate outdoor setting for classrooms and discussions. This versatile space is frequently utilized by students and faculty from architecture colleges, enhancing the collaborative atmosphere of the campus and encouraging meaningful interactions.
Drawing from the existing building lines and profiles, its architecture carefully tries to reinterpret the familiar forms and materials of the surrounding structures, blending harmoniously rather than asserting itself. This quiet presence allows it to form a subtle connection with its environment, shaped by intentional choices in levels, lines, and materials.
We studied the existing structures and their details, drawing inspiration from them not to replicate, but to reinterpret with thoughtful care and attention to detail. Throughout the design process, our primary goal was to enhance the campus by providing more space than it originally had, harmonizing our addition with the surrounding landscape. Today, even though the Black Box occupies a physical footprint on the campus, there’s a prevailing sense among everyone at the center that we have actually gained more space. This paradox reflects our commitment to creating an environment that feels more open and inviting, enriching the overall experience for all who engage with it.
The landscape surrounding the Black Box also plays a crucial role in this
integration, helping to blur the boundaries between the new structure and the
existing environment. This design approach creates a continuous visual and spatial
flow, making it nearly impossible to distinguish where the old architecture ends and
the new begins, resulting in an architectural dialogue that emphasizes continuity
over contrast.
What has truly enriched our experience are the conversations we’ve had with
Urmila Kanoria. Her vision, both for her past work and her ongoing contributions, is
profoundly inspiring. Even today, she frequently visits the center, brimming with
excitement and new ideas for future. Her enthusiasm and passion for life, coupled
with her commitment to giving back to society, have been invaluable lessons for
us. Once she commits to a project, she grants complete freedom to the artists and
architects involved, embodying the qualities of a true visionary. Trusting you,
supporting you and encouraging you every step of the way.
Email interview conducted by John Hill.
Location: Ahmedabad, India
Client: Urmila Kanoria
Architect: Studio Sangath, Ahmedabad
- Design Principals: Khushnu Panthaki Hoof and Sönke Hoof
- Project Manager: Vidhi Solanki
- Project Team: Keshav Akkitham, Ansal, Jerin Panakkel
Landscape Architect: Studio Sangath
Lighting Designer: Studio Sangath
Interior Designer: Studio Sangath
Contractor: Vasantbhai Prajapati
Photographer: Ishita Sitwala
Creative Director: Kunnal Pratap Das
Model: Aysha Nargees
Related articles
-
-
-
Center for Inclusive Growth & Competitiveness for TAPMI
The Purple Ink Studio | 27.10.2025 -
-








